Creating Floor Plans That Fit Your Life
Custom Home Plan Design in Newcastle for homeowners building from scratch or refining a vision before construction begins
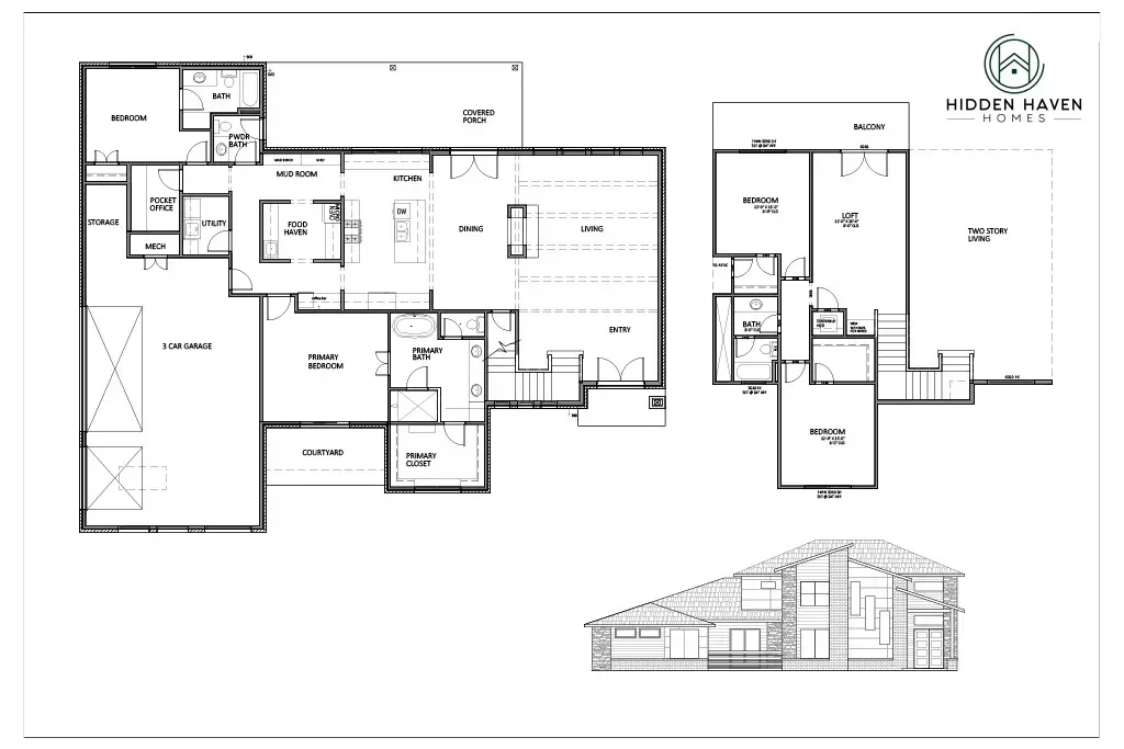
Hidden Haven Homes works with you to design fully customized floor plans that reflect how you live, what your land allows, and what you need from your home long after construction is finished. You meet with designers who listen to daily routines, family structure, future goals, and the specific characteristics of your lot before drawing a single line. This process is built for clients who want a home shaped around their lifestyle rather than adapting their routine to fit a generic layout.
The design process blends modern aesthetics with functional planning, producing layouts that move naturally from room to room without wasted hallways or awkward transitions. Designers account for lot orientation, views, drainage patterns, and setback requirements specific to properties across the Oklahoma City metro area. You receive floor plans that include personalized features such as dedicated office space with separate entry points, mudrooms positioned near garage access, or kitchen islands sized for how many people actually gather there during meals.
If you are ready to begin with land already purchased or a vision that needs professional structure, reach out to start a design consultation in Newcastle and surrounding areas.

How the Collaborative Design Process Works
You begin by describing how your household functions now and how you expect it to change, whether that means aging parents moving in, children eventually leaving, or workspace needs shifting over time. Designers use that input to draft layouts that prioritize natural flow, with attention to sight lines, storage placement, and room adjacency that supports daily movement patterns.
After the service is completed, you walk away with a set of floor plans that account for your land's topography, your household's routines, and the features that matter most to you. Hidden Haven Homes delivers plans ready for permitting and construction, eliminating guesswork about whether the design will actually work on your lot or meet your long-term needs.
The process includes multiple review rounds where you see changes reflected in updated drawings, not just verbal summaries. Designers adjust room sizes, door swings, window placement, and ceiling heights based on your feedback. Plans are drawn with construction details in mind, so builders receive documents that include structural notes, material callouts, and dimensions that reflect real-world installation requirements.
Questions About Starting a Custom Floor Plan
Clients building in Newcastle and the surrounding metro area often ask about timelines, revisions, and how lot conditions affect design decisions.
What information do you need before starting a floor plan?
You provide details about your lot, including survey documents, any known easements or restrictions, and a summary of how your household uses space daily.
How long does the design process typically take?
Most custom floor plans move through initial drafts and revisions within four to six weeks, depending on complexity and how quickly feedback is provided.
Why does lot orientation matter in the design phase?
Designers position windows, outdoor access points, and main living areas based on sun exposure, prevailing winds, and views specific to your property, which directly affects comfort and energy use once the home is built.
What happens if the design needs changes after the first draft?
You review the layout, request adjustments to room sizes or placements, and receive updated drawings that reflect those changes before moving forward.
How does Hidden Haven Homes account for future needs in the plan?
Designers include flexible spaces, pre-wired areas for future additions, and structural allowances for potential expansions or modifications years down the line.
If you have land ready and want a floor plan designed around your life rather than a catalog, contact Hidden Haven Homes to schedule a consultation and begin planning your custom home in the Oklahoma City metro area.
